クラシックモダンな壁面収納
2025-12-31カテゴリー お仕事日記 , ローボード , 壁面収納 , 施工例 , 書斎
あっという間に年の瀬です。
今年はリピートして下さるお客様からのお声掛けが多く、本当にじんわりと嬉しく有難い一年でした。
この場を借りて感謝申し上げます。
昨日はO様の家具をお届けしました。
今年最後にご紹介させていただきます。
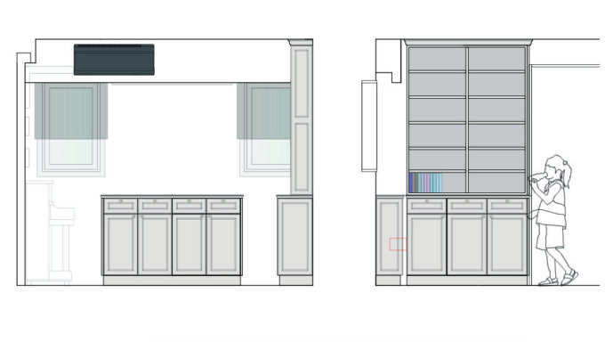
ご家族皆さまが利用できる書棚とカウンター収納をご希望でした。

普通の書棚ではないクラシックモダンな雰囲気の家具が既製品にはなく、デザインコンパスにお声掛けいただきました。
天井まで本が見える造り付けの収納と、窓面に動かせる腰高の収納です。
ご提案段階ではライトグレーで着色していましたが、O様のご希望でブラウン寄りの濃いグレーで製作することになりました。

写真はモールディング(廻り縁や天板の飾り)を本体からどのくらい出す?の打合せをしている写真です。
フラットでシンプルな家具よりも、細かい部分の納め方が大事になってきます。

設置当日。
窓側の下がり壁とコンセントをかわした位置から洋室ドア枠までに納めます。

ダイニングから見える側面にも化粧枠で雰囲気良く製作しています。

設置を終えました。
グレー具合が床や建具の色調と合っていて、O様さすがのセレクトでした。

モールディングの出具合もバランス良く仕上がりました。
化粧部分はエナメル塗装ですが、天面は同じ色のメラミンを使用しているので傷の心配が少ないです。

翌日、お写真を送っていただきました。
設置直後よりも本が入った方が何倍も素敵に見えますね^^
棚の高さもお手持ちの本のサイズに合わせて細かく設定したことで、無駄なくスッキリ見えます。
本が全部入るか心配でしたが、むしろ少し余裕があるそうで安心しました。
喜んでいただけて嬉しい限りです。
今年一年、大変お世話になりました。
2026年もどうぞよろしくお願いいたします。



























































